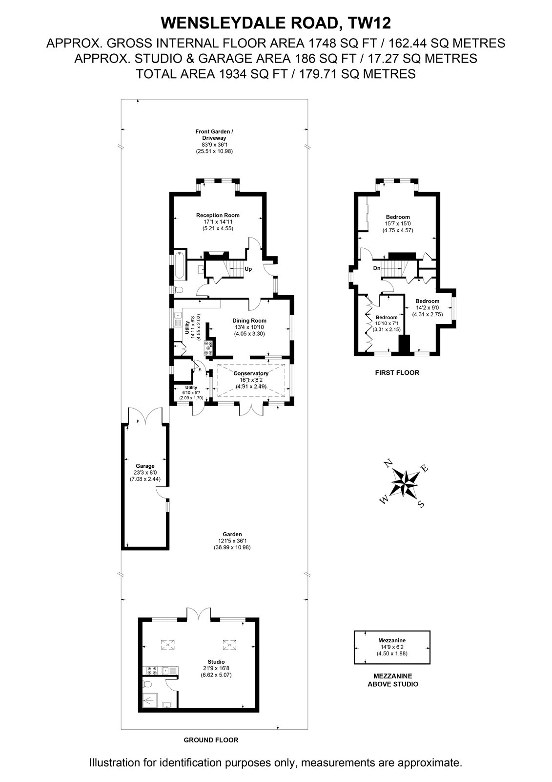
Wensleydale Road, Hampton, TW12 2LZ

Wensleydale Road

,

Hampton
3 BED
£999,999 Guide Price

Property Summary

"The best road, a huge plot, massive rear garden, I think this one could be popular. Whether you’re looking to undertake a once in a lifetime renovation or simply looking for a special location this is a house which ticks all the boxes for a buyer prepared to roll up their sleeves . . ." James - Devenports Co-Owner

This three-bedroom detached home offers buyers scope to extend to the side, rear and loft subject to the usual planning consents.

This is a house which very much offers 'money cant buy features' at the price bracket, and it is these additional features which serve to distinguish this house further from anything else in the price bracket. With an attractive frontage, side access to a huge garden and unrivalled studio, this will surely be a hit with buyers looking to add value.
  • Ref: DVN230191
  • Type: Detached
  • Availability: 'Spoken For'
  • Bedrooms: 3
  • Bathrooms: 2
  • Reception Rooms: 3
  • Parking: Off Road Parking, Single Garage
  • Outside Space: Garden
  • Tenure: Freehold
Wensleydale Road, Hampton, TW12 2LZ

Book A Viewing

To book a viewing for this property please complete the form below.