Waverley Avenue, Whitton, TW2 6DQ

Waverley Avenue

,

Whitton
3 BED
£575,000 Guide Price

Property Summary

“This substantial property is a wonderful blank canvas, perfect for a family looking to create a warm and welcoming home, just minutes from both the High Street and the train station.”
— Yasmin, Local Expert

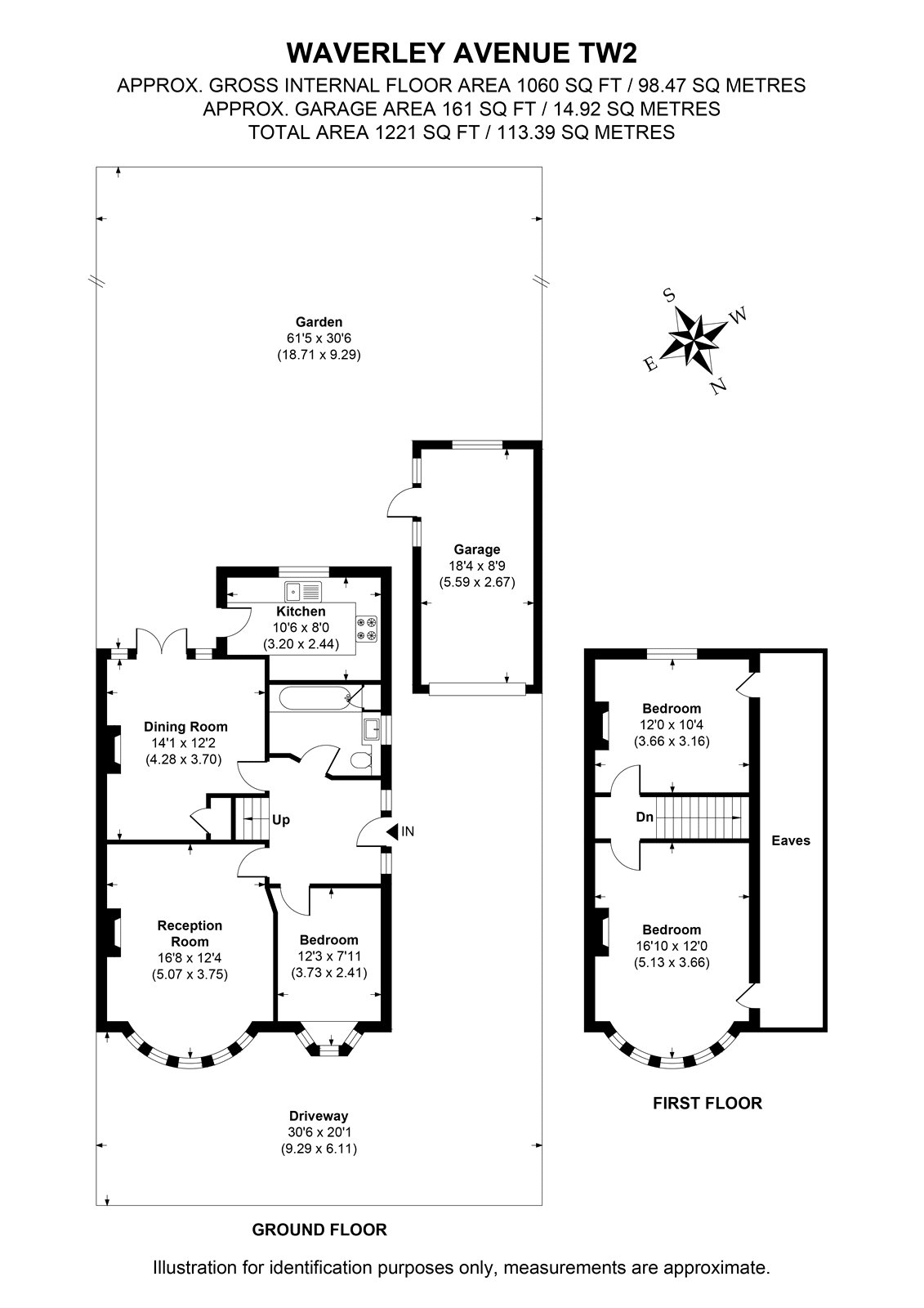
This charming three-bedroom semi-detached 1930s family home is full of character and potential, offering generous living space and plenty of opportunity to grow into over time.

On the ground floor, there is a comfortable reception room, a separate dining room ideal for family meals and entertaining, and a kitchen overlooking the garden. A further room off the entrance hall is currently used as a downstairs bedroom but would also make a lovely second reception room, playroom, or home office. A family bathroom with a heated towel rail completes the ground floor.

Upstairs, there are two well-proportioned bedrooms along with a substantial eaves storage area. Outside, the south-west facing garden is perfect for enjoying afternoon sun, while the wide plot also provides off-street parking, a garage, and excellent potential to extend to the rear and into the loft (subject to the usual planning permissions).

Offered to the market with no onward chain, this is a home ready for its next chapter.

Waverley Avenue sits just moments from Crane Park and the River Crane, ideal for peaceful walks, weekend strolls, and outdoor time with the dog. Whitton Station and High Street are just over a mile away, offering direct links into London Waterloo and a great selection of local shops, cafés, and restaurants.
  • Ref: TWD250866
  • Type: Semi-Detached
  • Availability: 'Spoken For'
  • Bedrooms: 3
  • Bathrooms: 1
  • Reception Rooms: 2
  • Parking: Off Road Parking, Single Garage
  • Outside Space: Garden
  • Tenure: Freehold
Waverley Avenue, Whitton, TW2 6DQ

Book A Viewing

To book a viewing for this property please complete the form below.