Twickenham Road, Teddington, TW11 8AZ

Twickenham Road

,

Teddington
3 BED
£1,150,000 Guide Price

Property Summary

"Apartments of this size and layout are within The Wharf Development are rarely available, and opportunities like this do not come to market often. . ." Ryan - Branch Manager, Devenports.

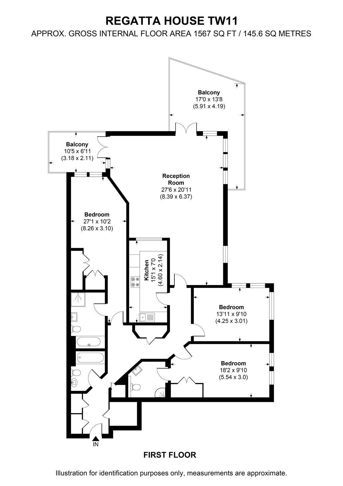
Offering approximately 1,567 sq ft of internal space, this generously sized apartment has recently undergone both internal and external renovations and provides flexible, well-balanced accommodation ideal for modern living.

At the heart of the home is a large reception room, perfect for both relaxing and entertaining, with direct access to two impressive private balconies. The more recently redecoated kitchen is smart and practical, with ample storage and worktop space.

There are three well-proportioned bedrooms, including a notably spacious principal bedroom, along with a family bathroom, and two additional bathrooms, making the layout ideal for all walks of life, whether it be a family, downsizer or simply wanting a 'bolthold'.

Well positioned for Twickenham Teddington and Kingston town centres as well as the River Thames, the property also benefits from excellent transport links, with Teddington station, a great selection of shops, cafés, restaurants and highly regarded schools are all close at hand. Let's not forget the short walk across The Teddington Lock where you can access Ham Common.
  • Ref: DVN260020
  • Type: Apartment / Maisonette
  • Availability: For Sale
  • Bedrooms: 3
  • Bathrooms: 3
  • Reception Rooms: 1
  • Parking: Residents
  • Outside Space: Balcony
  • Tenure: Share of Freehold
Twickenham Road, Teddington, TW11 8AZ

Book A Viewing

To book a viewing for this property please complete the form below.