Third Cross Road, Twickenham, TW2 5EA

Third Cross Road

,

Twickenham
2 BED
£1,600 pcm

Property Summary

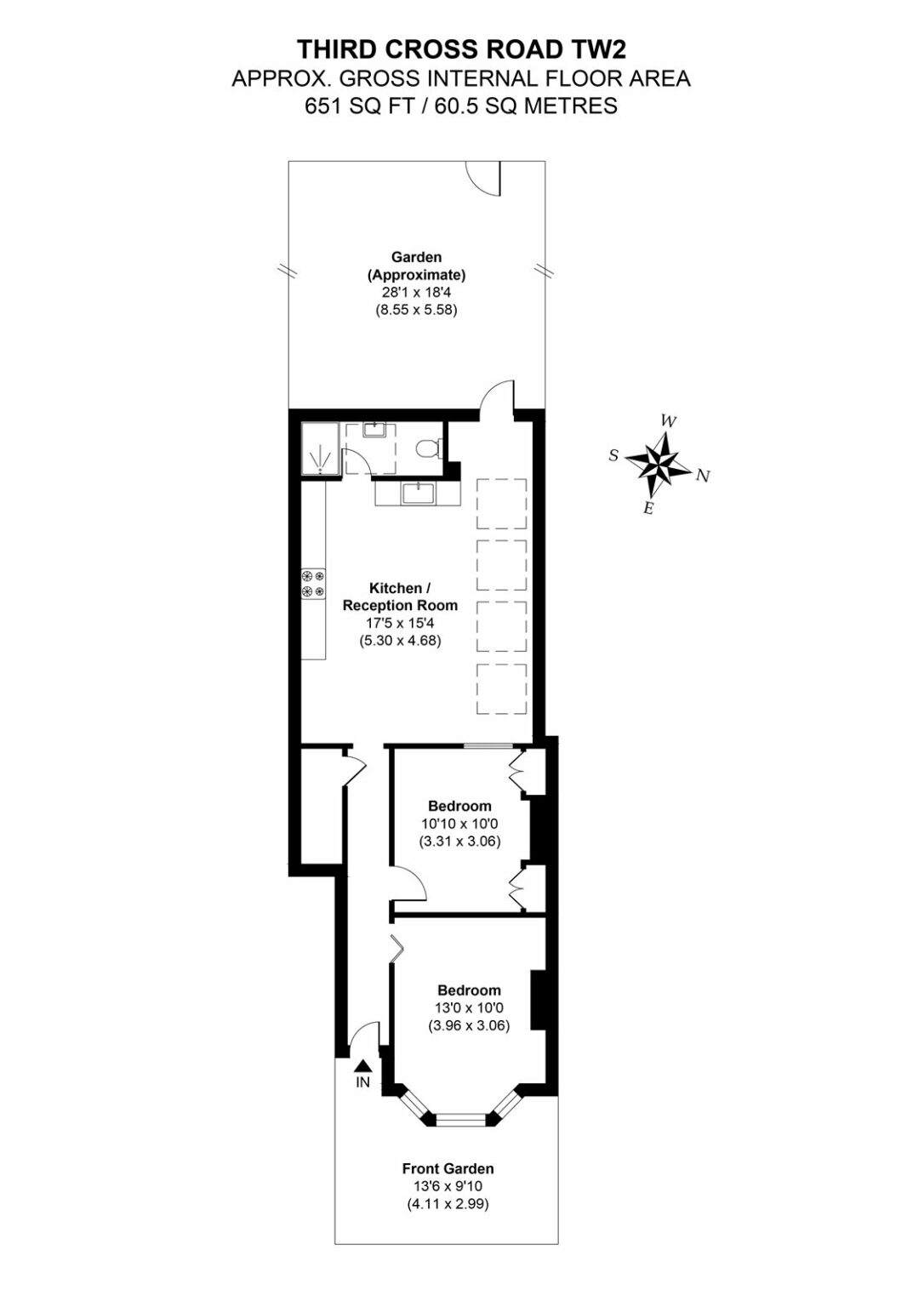
Sure to be a welcome addition to the rental market, is this modern two-bedroom maisonette in Twickenham.

We love a property that scores highly across the board and with its clean decor, well-proportioned rooms, stylish extension and a 0.5 mile walk Twickenham Green what more could you ask for? How about a well maintained rear garden, extended kitchen and on-street parking. . . " Jourdain - Senior Lettings Expert

Third Cross Road is ideally located with Twickenham Green, local shops, and transport links on your doorstep. The property is also within catchment of the area’s most sought-after schools.
  • Ref: DVN240255
  • Availability: Let
  • Bedrooms: 2
  • Bathrooms: 1
  • Reception Rooms: 1
  • Outside Space: Garden
  • Deposit: £1,846.15
  • Available: Now
Third Cross Road, Twickenham, TW2 5EA

Book A Viewing

To book a viewing for this property please complete the form below.