Thames Street, Hampton, TW12 2EW

Thames Street

,

Hampton
2 BED
£400,000 Guide Price

Property Summary

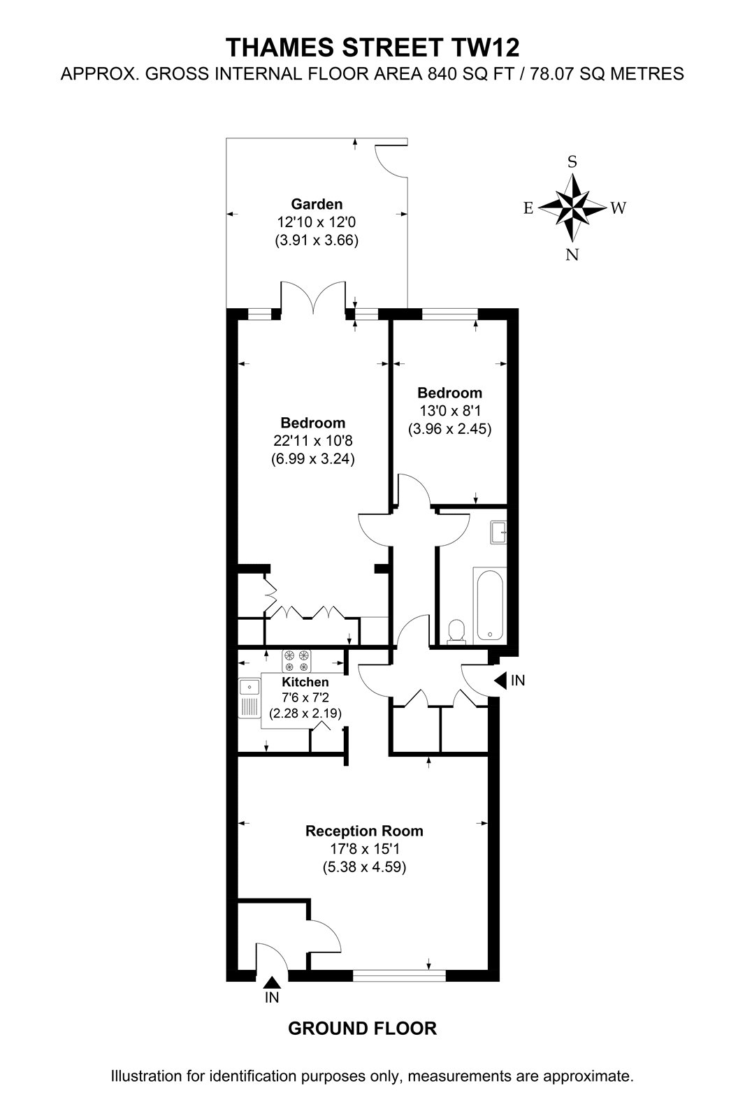
"This two-bedroom high spec flat, spanning over 840 square feet and just moments away from both Hampton village and Hampton train station is one that you don't want to miss! " - James, Devenports co-owner.

Situated in the heart of Hampton, this impressive ground floor apartment spans over 840 square feet and has been newly finished to a high specification throughout. It offers two well-proportioned bedrooms (one with built in wardrobes) and a bright, contemporary living space that feels calm, refined and immediately welcoming. Further benefits include off-street parking, private garden and bike/storage shed, a rare and valuable addition for a property of this type, making it particularly appealing to a range of buyers.

An excellent opportunity to secure a high-quality apartment in a highly regarded Hampton location. With Hampton train station and Hampton Village being within 0.3 miles, it provides great access.

Disclaimer - The information provided, relating to service charge, ground rent, tenure, lease length, garage & parking has been provided to Devenports by the owner of the property. Devenports do not take any responsibility for its accuracy and are simply relaying the information provided by the owner of the property itself
  • Ref: DVN260166
  • Type: Apartment / Maisonette
  • Availability: For Sale
  • Bedrooms: 2
  • Bathrooms: 1
  • Reception Rooms: 1
  • Parking: Off Road Parking
  • Outside Space: Garden
  • Tenure: Share of Freehold
  • Leasehold Remaining: 70 years
  • Service Charge: £2,400
Thames Street, Hampton, TW12 2EW

Book A Viewing

To book a viewing for this property please complete the form below.