Somerset Road, Teddington, TW11 8RS

Somerset Road

,

Teddington
4 BED
£1,495,000 Guide Price

Property Summary

Quality comes to mind, when you look at our newest listing on Somerset Road. Sure to be snapped up quickly is this 4 bedroom immaculately presented home… - James (Co-Owner Devenports)

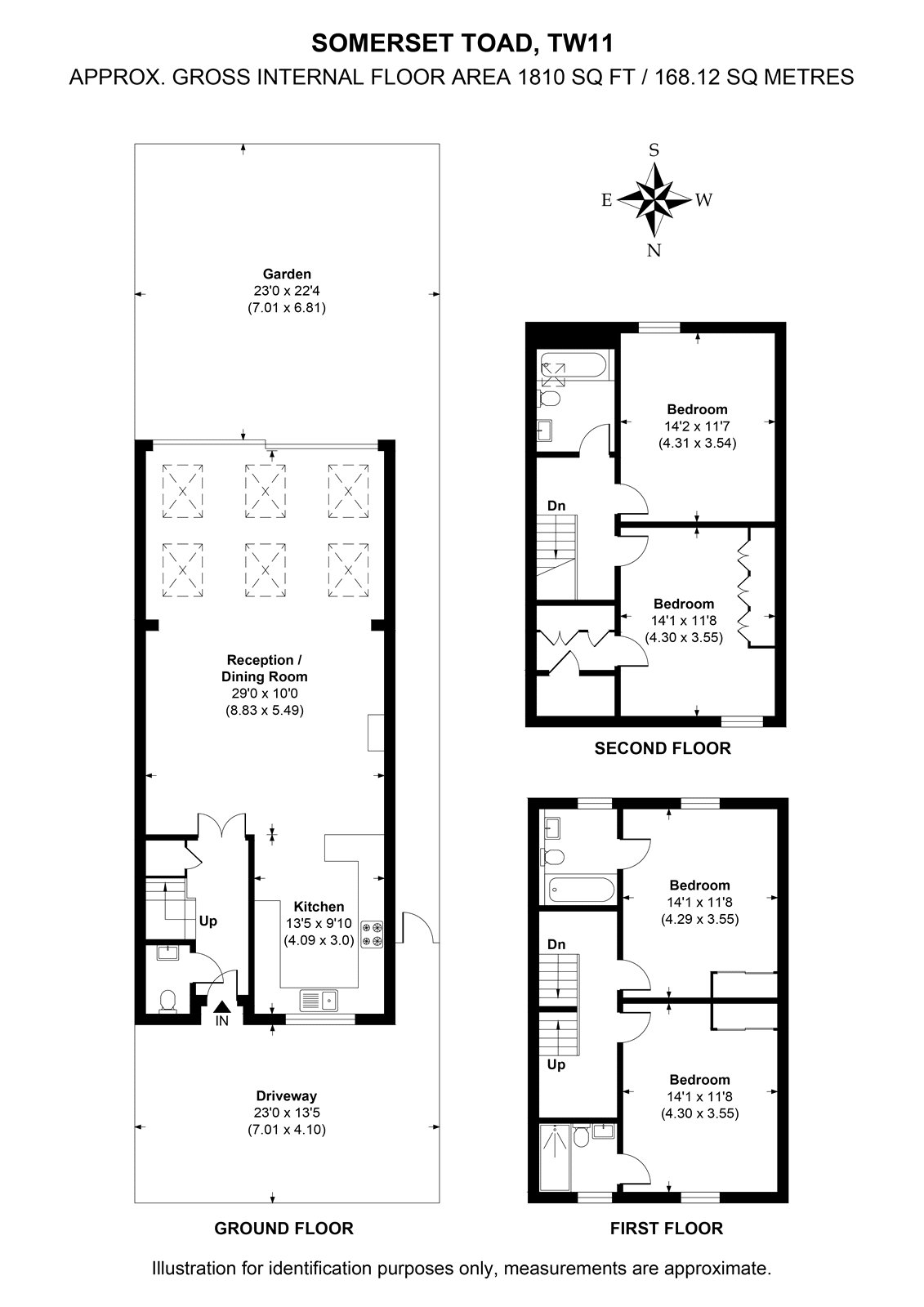
This part of Teddington has never been so popular with the demand for the area's larger homes at record levels, the only issue being very few properties have been to market recently that fit this profile. This super attractive four-bedroom semi detached is going to be turning some heads. With build quality that is second to none and benefitting from careful and considerate improvements from the current owners this home really is the finished article. Measuring in excess of 1800 square foot, the property boasts extensive living space, four large bedrooms, three bathrooms, an abundance of storage space and a sizable separate entertaining space. Still looking for more? How about, a large, south facing landscaped garden and parking come with the home.

Somerset Road is a sought-after road in the heart of Teddington. The development is within catchment of many of the area's most sought after schools and is so popular with buyers due to its proximity to both the Train Station & The High Street.
  • Ref: TWD250623
  • Type: Semi-Detached
  • Availability: 'Spoken For'
  • Bedrooms: 4
  • Bathrooms: 3
  • Reception Rooms: 2
  • Parking: Off Road Parking
  • Outside Space: Garden
Somerset Road, Teddington, TW11 8RS

Book A Viewing

To book a viewing for this property please complete the form below.