Saxonbury Avenue, Lower Sunbury, TW16 5HD

Saxonbury Avenue

,

Lower Sunbury
3 BED
£699,950 Guide Price

Property Summary

"What's not to like? Detached, superb location, three double bedrooms, an immaculate spec and all wrapped up with parking, garage and a good size secluded garden. . . It's no wonder Lower Sunbury has become so popular with stock like this available." – Chad (Devenports Partner)

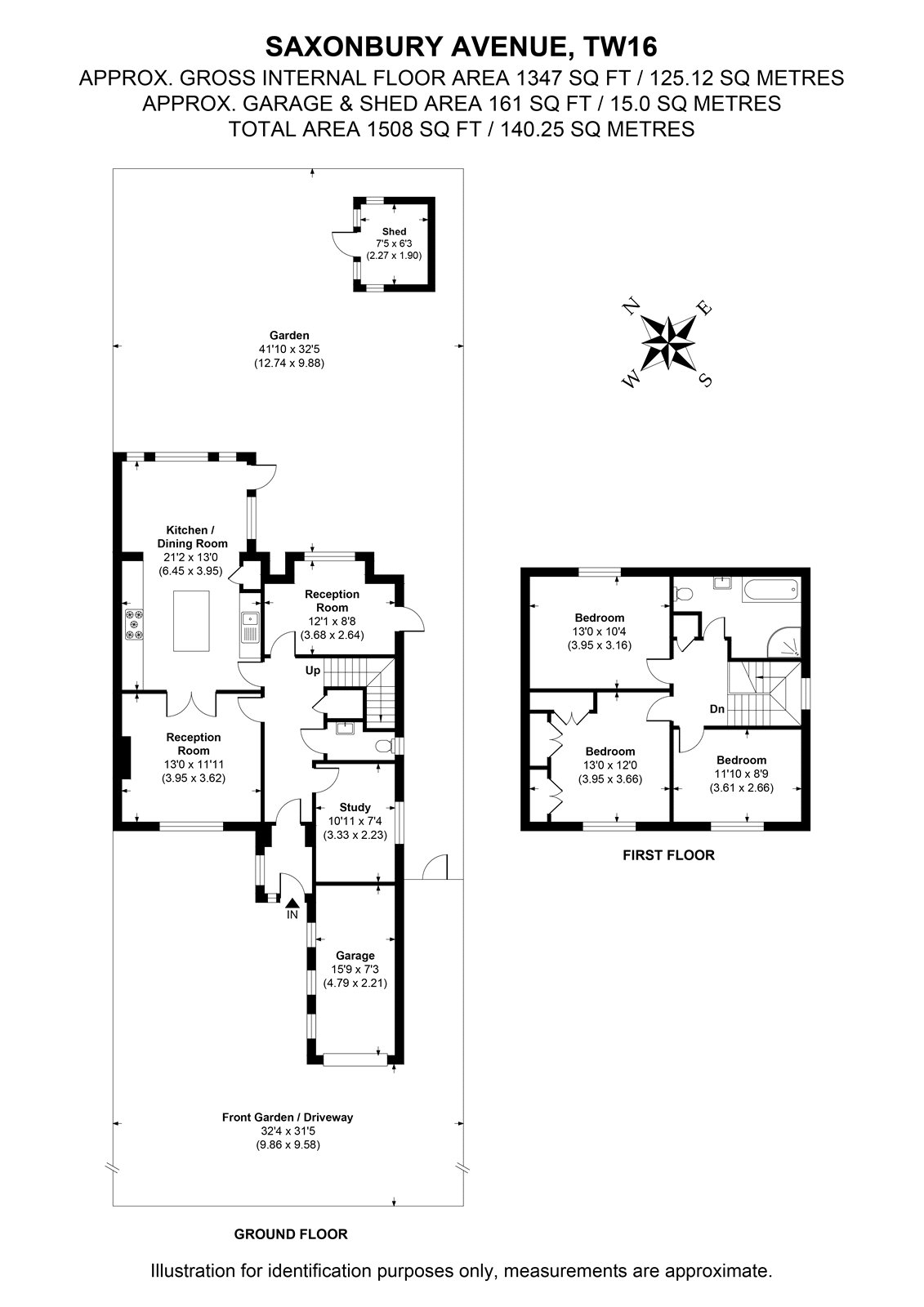
Spanning nearly 1400 square feet, this three double bedroom detached house certainly delivers an 'all round performance'. Rarely does a house deliver so well across the board and buyers will love being able to take advantage of the properties large eat in kitchen/diner, the two further receptions and separate study. Still looking for more? This property continues to impress with the additions of off-road parking, garage, modern family bathroom suite and a downstairs WC.

Saxonbury Avenue is fast becoming one of Lower Sunbury's most desirable spots and it's no wonder why. With a short walk to both the village shops, pubs, cafes and River Thames, along with being within catchment area for many of the area’s best schools, it's no surprise this proves to be such a popular location for all.
  • Ref: TWD250709
  • Type: Detached
  • Availability: 'Spoken For'
  • Bedrooms: 3
  • Bathrooms: 1
  • Reception Rooms: 3
  • Parking: Off Road Parking, Single Garage
  • Outside Space: Garden
  • Tenure: Freehold
Saxonbury Avenue, Lower Sunbury, TW16 5HD

Book A Viewing

To book a viewing for this property please complete the form below.