Rumsey Close, Hampton, TW12 3XY

Rumsey Close

,

Hampton
3 BED
£450,000 Guide Price

Property Summary

"We are delighted to present this three-bedroom, end of terrace property, offering fantastic potential for buyers looking to make a home their own." - James - Co Owner

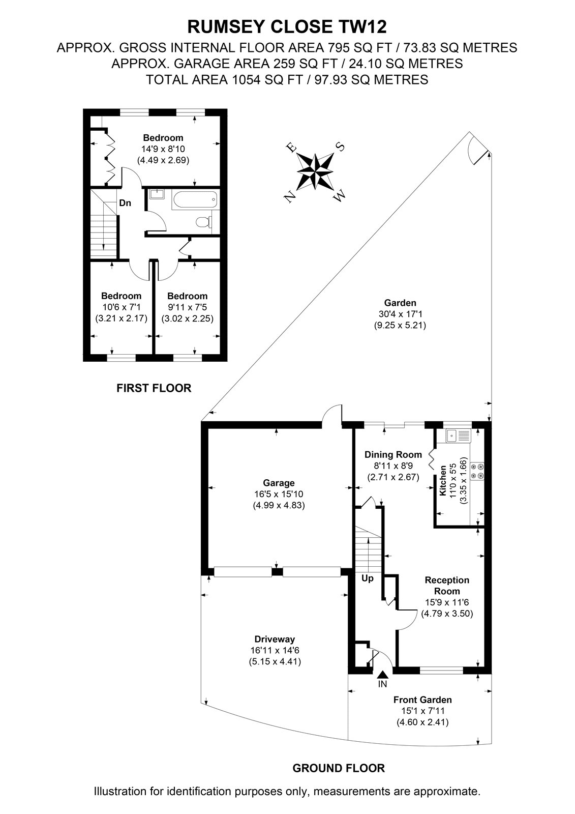
The property features a well-proportioned reception room, functional kitchen space and a private garage that adds valuable storage or additional parking. 

Offered with no onward chain, this home is ideal for first-time buyers, investors or anyone seeking a straightforward purchase. While the property would benefit from personal touches and modernisation, it provides a great oppurtunity to create a home tailored to your own style and needs. 

Conveniently located within close proximity to local amenities, shops, schools and transport links. This property combines potential with practicality.
  • Ref: TWD250831
  • Type: End of Terrace
  • Availability: 'Spoken For'
  • Bedrooms: 3
  • Bathrooms: 1
  • Reception Rooms: 1
  • Parking: Off Road Parking, Single Garage
  • Outside Space: Garden
  • Tenure: Freehold
Rumsey Close, Hampton, TW12 3XY

Book A Viewing

To book a viewing for this property please complete the form below.