Golf Side, Twickenham, TW2 5NR

Golf Side

,

Twickenham
4 BED
£825,000 Guide Price

Property Summary

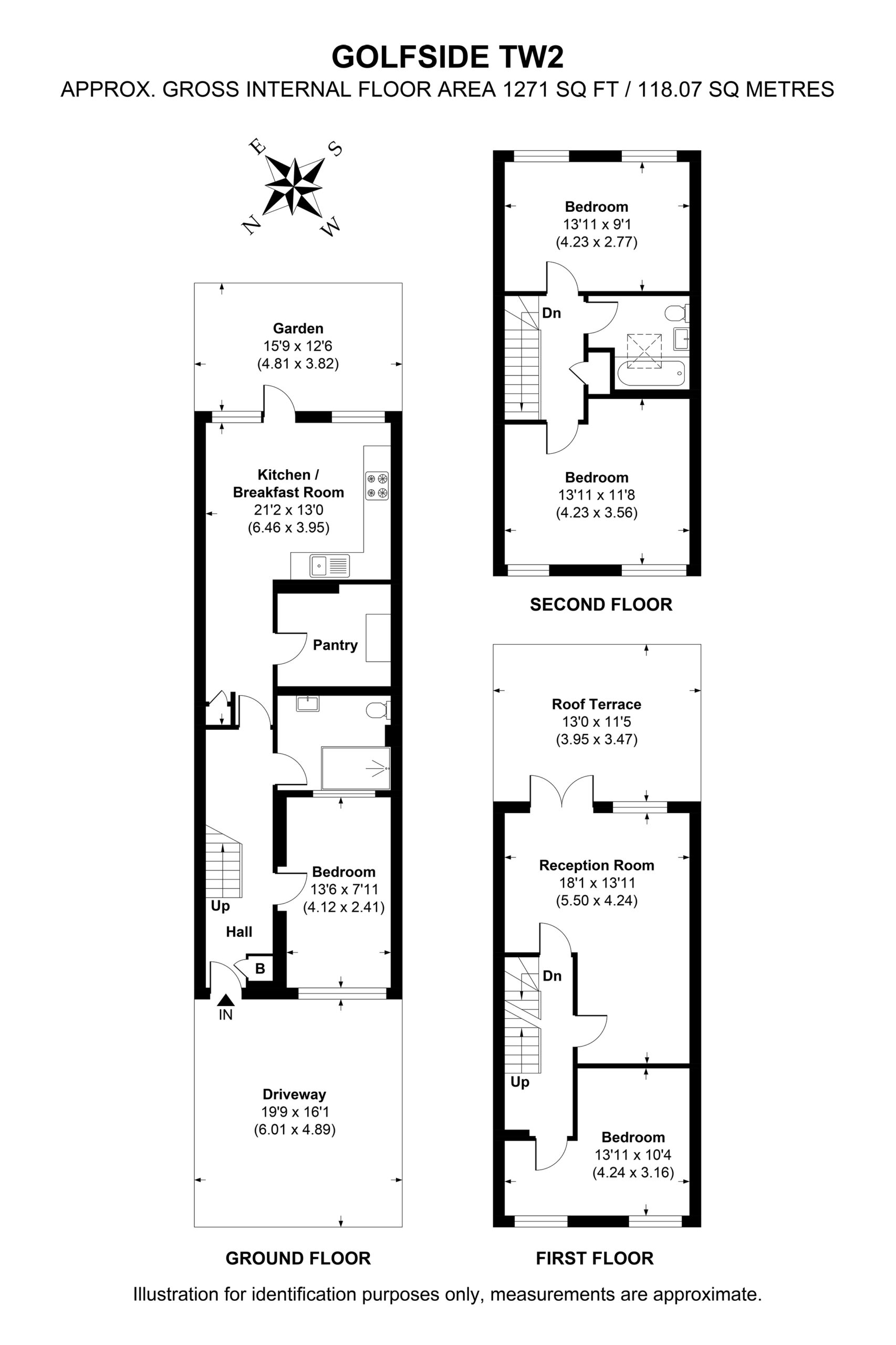
An immaculately presented four-bedroom property set within the highly sought-after Golf Side cul-de-sac on the edge of Strawberry Hill golf club in Twickenham. The property has been upgraded throughout by the current owners.

The accommodation offers bright, spacious and versatile accommodation across three storeys with the kitchen on the ground floor opening out onto the garden. The property features a fresh and neutral décor throughout, as well as driveway parking for one car, a roof terrace with superb views over the golf course.

The property is well-located for local amenities, well-rated schools including Waldegrave Girls School (which the property is in the catchment for), and excellent transport links including the A316 and Fulwell Train Station, which is a short walk away and provides fast services into the city.
  • Ref: DVN260232
  • Type: Terraced
  • Availability: For Sale
  • Bedrooms: 4
  • Bathrooms: 2
  • Reception Rooms: 1
  • Parking: Off Road Parking
  • Outside Space: Garden, Roof Terrace
Golf Side, Twickenham, TW2 5NR

Book A Viewing

To book a viewing for this property please complete the form below.