Field Lane, Teddington, TW11 9AS

Field Lane

,

Teddington
3 BED
£975,000 Guide Price

Property Summary

"If you know Teddington, then you know Field Lane and how unrivalled the location is when considering the high street, schools and transport links. . ." Ryan - Branch Manager, Devenports.

This period property has had thoughtful improvement on the ground floor, with renovation work already completed to enhance the living space. There were previously plans approved to extend to rear and really level up the ground floor to suit individual tastes. While those permissions are now likely expired, the potential remains for future buyers to explore extension or adaptation (subject to relevant planning consent), offering exciting scope to tailor this home further.

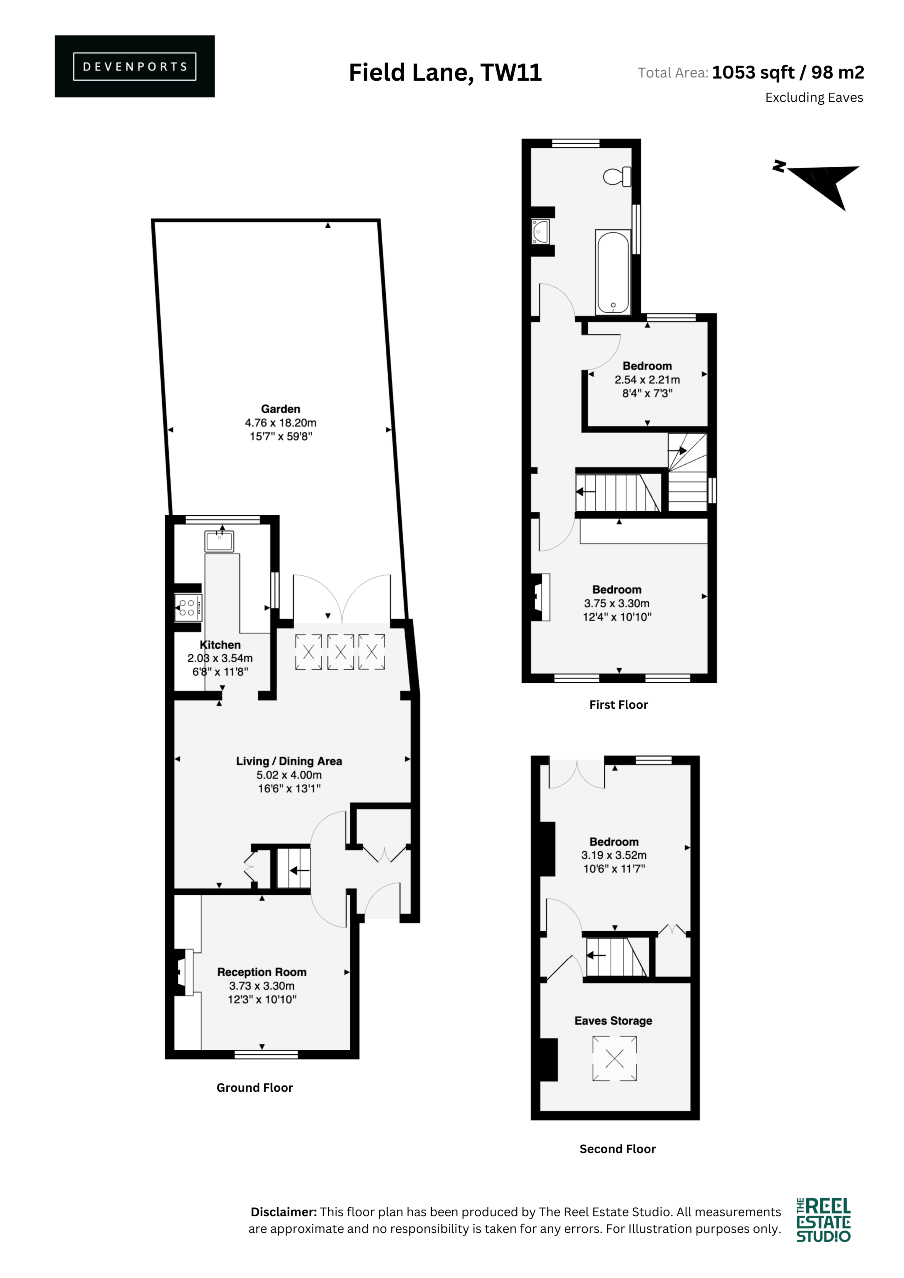
Upstairs are three bedrooms arranged over two floors, served by a family bathroom.

Externally, the garden is deceptive and secluded considering the location offering approximately 40ft with patio and lawn.

Set on the ever-popular Field Lane, the property enjoys convenient access to local amenities, transport links and the open spaces of Bushy Park, with Teddington High Street, shops, cafés and transport connections all within easy reach.
  • Ref: DVN260161
  • Type: Semi-Detached
  • Availability: 'Spoken For'
  • Bedrooms: 3
  • Bathrooms: 1
  • Reception Rooms: 2
  • Outside Space: Garden
  • Tenure: Freehold
Field Lane, Teddington, TW11 9AS

Book A Viewing

To book a viewing for this property please complete the form below.