Courtlands Avenue, Hampton, TW12 3NS

Courtlands Avenue

,

Hampton
5 BED
£1,625,000 Guide Price

Property Summary

"A rarely available listing has arrived in TW12. This detached double fronted house is substantial, was renovated recently and has a huge south facing garden. . . . " James - Devenports Co-Owner"

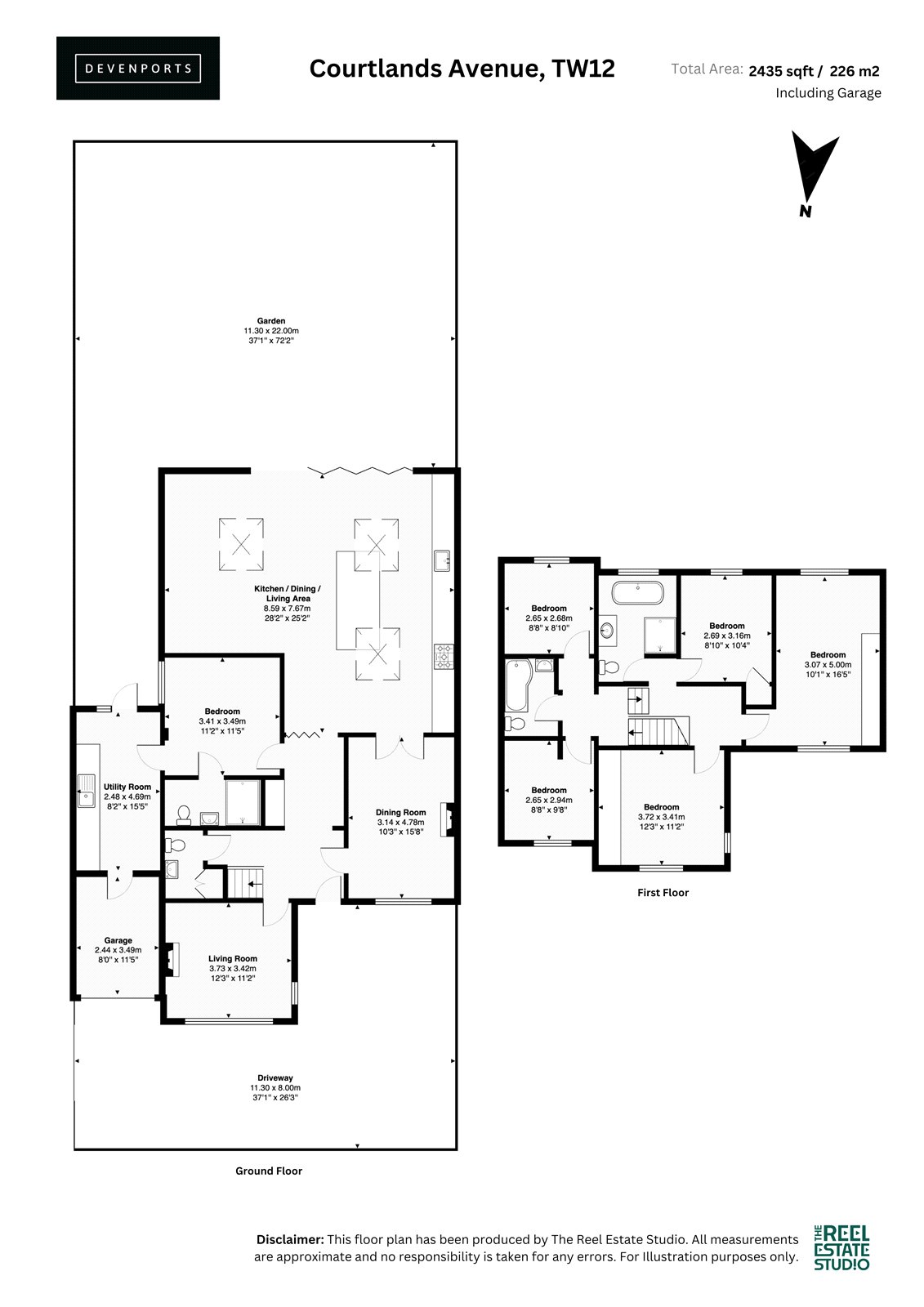
With accommodation spanning in excess of 2400 square feet this immaculate five bedroom house packs the combination of size, spec and location. Buyers will love the property's four reception spaces, three bathrooms, ensuite and of course 100ft plus foot south facing garden.

Still looking for more? The property continues to impress with the additions of a large driveway, integral garage, downstairs W.C & utility space.

Courtlands Avenue is renowned locally for its enviable school catchment position for both public & state schools along with its array of bold and sizeable period homes. In addition, the property offers buyers easy access to both Hampton train station (0.6 miles) & the village shops (0.7 miles), as well as bus connections to Richmond and Kingston upon Thames at the end of the street.
  • Ref: DVN260211
  • Type: Detached
  • Availability: 'Spoken For'
  • Bedrooms: 5
  • Bathrooms: 3
  • Reception Rooms: 4
  • Parking: Off Road Parking
  • Outside Space: Garden
  • Tenure: Freehold
Courtlands Avenue, Hampton, TW12 3NS

Book A Viewing

To book a viewing for this property please complete the form below.