Cleveland Avenue, Hampton, TW12 2RD

Cleveland Avenue

,

Hampton
2 BED
£550,000 Guide Price

Property Summary

A real blank canvass, in a sought after road is always going to grab the attention of families looking to put their own mark on a property whilst having school catchments in mind. With this much extension potential, these types of properties never hang around for long ...." - James ,Owner.

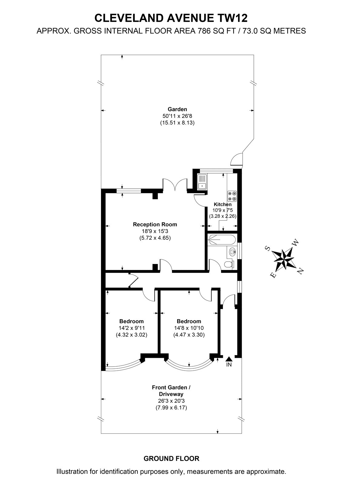
Sure to cause a real stir is this two double bedroom Bungalow. Set in a popular road and with the rare combo of parking, side access, and a good sized garden this property is certainly an 'all rounder'. Still looking for more? The property offers significant potential to extend further to rear and into the loft to allow a buyer a chance to create a more sizeable home.

Cleveland Avenue is situated just 0.6 miles away from Hampton train station and Waitrose and within catchment for many of the area's most sought after schools.
  • Ref: DVN230342
  • Type: Semi-Detached
  • Availability: 'Spoken For'
  • Bedrooms: 2
  • Bathrooms: 1
  • Reception Rooms: 1
  • Parking: Off Road Parking
  • Outside Space: Garden
  • Tenure: Freehold
Cleveland Avenue, Hampton, TW12 2RD

Book A Viewing

To book a viewing for this property please complete the form below.